Beth Erickson Sand Denver Real Estate Agent - 720.353.2384
SOLD! MLS: 7863495 $875,000
2 Bedrooms with 4 Baths1819 BOULDER ST 108 DENVER CO 80211
DENVER CO 80211MLS: 7863495
Status: SOLD
Closed On: 2024-08-12
Sold Price: $875,000
Sold Price per SqFt: $592
Square Footage: 14792 Bedrooms
4 Baths
Year Built: 2015
Zip Code: 80211
Listing Remarks
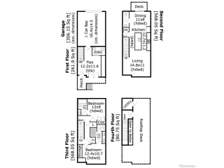
This rarely available, street-facing townhome has exquisitely balanced living, situated idyllicly in the heart of the LoHi fun zone and bringing the outdoors in with picturesque vantages on every level. The first level flex space features soft Southeastern light from the glass french doors and sleek built-in storage for mudroom utility and office space. The front porch and main floor are elevated above street level for added privacy. The second level open floorplan is illuminated with natural light across the space, filtering in from expansive Southern floor-to-ceiling windows and Northern wide sliding glass doors, leading to the elevated balcony for private al fresco grilling and indoor/outdoor entertainment. The modern kitchen features a large quartz eat-in island, 5-burner gas range, ample storage, and stainless steel appliances. The primary bedroom is highlighted by sleek custom built-ins, captivating southern light from the floor-to-ceiling windows with adjustable top-down, bottom-up blinds for privacy, and relaxing ensuite bathroom with linen closet. The second third-level bedroom is treated to a dedicated, full ensuite bath. Laundry is conveniently located on the same bedroom level. Entertain and unwind on the expansive rooftop engineered for hot tub with gas and water hookups, offering panoramic Mile High and mountain views. Moments away from all the draws of LoHi living: proximity to downtown and Confluence Park, easy access to the highway to explore, and the many coffee shops, retail, and restaurants such as Postino, Happy Camper, Little Man Ice Cream, and Avanti. Partywall Agreement is professionally managed. Floorplan and Feature Sheet documents available.
Address: 1819 BOULDER ST 108 DENVER CO 80211 DENVER CO 80211
Listing Courtesy of LIV Sotheby's International Realty 303-893-3200
Condo Mania Agent
Beth Sand
LIV Sotheby's International Realty
Broker Associate
Phone: 720.353.2384
Request More Information
Listing Details
STATUS: Closed SPECIAL LISTING CONDITIONS: Private Owner LISTING CONTRACT DATE: 2024-07-17 CLOSE DATE: 2024-08-12 BEDROOMS: 2 BATHROOMS FULL: 1 BATHROOMS THREE QUARTER: 1 BATHROOMS HALF: 2 LIVING AREA SQ FT: 1479 BUILDING AREA TOTAL: 1479 YEAR BUILT: 2015 TAXES: $3,846 APPLIANCES INCLUDED: Dishwasher, Refrigerator, Washer, Dryer, Microwave ARCHITECTURAL STYLE: Contemporary/Modern CONSTRUCTION: Wood/Frame, Brick/Brick Veneer, Metal Siding EXTERIOR FEATURES: Balcony HEATING: Forced Air COOLING: Central Air, Ceiling Fan(s) INTERIOR FEATURES: Study Area, Eat-in Kitchen, Open Floorplan, Kitchen Island LAUNDRY FEATURES: Upper Level LOT FEATURES: Gutters # GARAGE SPACES: 1 PROPERTY TYPE: Attached Dwelling PROPERTY SUB TYPE: Attached Dwelling ROOF: Flat DIRECTION FACES: Southeast VIEW: City LISTING AGENT: MCKINZE CASEY LISTING OFFICE: LIV SOTHEBY'S INTERNATIONAL REALTY
Property Location: 1819 BOULDER ST 108 DENVER CO 80211 DENVER CO 80211
This Listing
Active Listings Nearby
You Might Also Be Interested In...
The Fair Housing Act prohibits discrimination in housing based on color, race, religion, national origin, sex, familial status, or disability.
Source: Information and Real Estate Services, LLC. Provided for limited non-commercial use only under IRES Rules. © Copyright IRES. All information subject to change and should be independently verified.
All real estate advertised herein is subject to the Federal Fair Housing Act and the Colorado Fair Housing Act, which Acts make it illegal to make or publish any advertisement that indicates any preference, limitation, or discrimination based on race, color, religion, sex, handicap, familial status, or national origin.
ALL RIGHTS RESERVED WORLDWIDE. No part of this publication may be reproduced, adapted, translated, stored in a retrieval system or transmitted in any form or by any means, electronic, mechanical, photocopying, recording, or otherwise, without the prior written permission of the publisher.
Information Deemed Reliable But Not Guaranteed. The information being provided is for consumer's personal, non-commercial use and may not be used for any purpose other than to identify prospective properties consumers may be interested in purchasing. This information, including square footage, while not guaranteed, has been acquired from sources believed to be reliable.
Last Updated: 2026-01-31 16:30:32
Denver Condo Mania





