Beth Erickson Sand Denver Real Estate Agent - 720.353.2384
MLS: 5666180 $312,500
2 Bedrooms with 2 Baths1301 SPEER BLVD 702 DENVER CO 80204
DENVER CO 80204MLS: 5666180
Status: ACTIVE
List Price: $312,500
Price per SQFT: $340
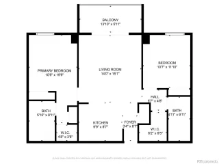
Square Footage: 9192 Bedrooms
2 Baths
Year Built: 1982
Zip Code: 80204
Listing Remarks
WASHER/DRYER HOOKUPS ARE IN THE PROCESS OF BEING INSTALLED INSIDE OF THE UNIT!! Stunning Downtown Denver Condo with Unobstructed Mountain Views! Experience elevated city living in this beautifully maintained 7th-floor condo located in the heart of Downtown Denver. This 2-bedroom, 2-bathroom home offers 919 SQFT of thoughtfully designed space featuring an open floor plan, tall ceilings, and bright natural light throughout. Enjoy sweeping west-facing mountain views and surrounding cityscapes from your private balcony-perfect for your morning coffee or evening glass of wine. The kitchen boasts granite countertops and easy-care faux wood flooring, while large sliding glass doors fill the living and dining areas with sunlight. Both bedrooms offer generous walk-in closets, and the unit includes abundant in-unit storage plus a dedicated storage locker. Solid building construction ensures a quiet and peaceful living environment. Included are two deeded parking spaces in the community garage. Residents also enjoy resort-style amenities: pool, hot tub, gym, movie theater, fire pits, clubhouse, and more. Buyers have the option to GENERATE EXTRA INCOME by renting out one or both of the deeded parking spaces in the secure, covered garage-current market rates range from $300-$400 per month per space, which can significantly offset the HOA fee. Just steps from grocery stores, top-rated restaurants, boutique shops, and entertainment-this is the ideal urban retreat. Come see it today and fall in love! All information is deemed reliable but not guaranteed, Buyer/Buyer's agent is responsible for verifying all information, including, but not limited to, taxes, measurements, square footage, & schools.
Address: 1301 SPEER BLVD 702 DENVER CO 80204 DENVER CO 80204
Listing Courtesy of Nookhaven Homes 720-745-2722
Community: DENVER TOWER CONDOMINIUMS ... Listing 2 of 8
First -- Next -- Previous -- Last
Condo Mania Agent
Beth Sand
LIV Sotheby's International Realty
Broker Associate
Phone: 720.353.2384
Request More Information
Listing Details
STATUS: Active SPECIAL LISTING CONDITIONS: Private Owner LISTING CONTRACT DATE: 2025-06-05 BEDROOMS: 2 BATHROOMS FULL: 2 BATHROOMS THREE QUARTER: 0 BATHROOMS HALF: 0 LIVING AREA SQ FT: 919 BUILDING AREA TOTAL: 919 YEAR BUILT: 1982 TAXES: $1,755 HOA FEES FREQUENCY: Monthly HOA FEES: $680 HOA INCLUDES: Trash, Snow Removal, Water/Sewer APPLIANCES INCLUDED: Dishwasher, Microwave, Disposal ARCHITECTURAL STYLE: Ranch CONSTRUCTION: Block, Other, Concrete COMMUNITY FEATURES: Clubhouse, Hot Tub, Pool, Fitness Center, Elevator EXTERIOR FEATURES: Balcony HEATING: Forced Air COOLING: Central Air INTERIOR FEATURES: Eat-in Kitchen, Open Floorplan, Walk-In Closet(s) LAUNDRY FEATURES: Main Level # GARAGE SPACES: 2 PROPERTY TYPE: Attached Dwelling PROPERTY SUB TYPE: Attached Dwelling ROOF: Other DIRECTION FACES: West VIEW: Mountain(s), City LISTING AGENT: CHRISTINA CLAXTON LISTING OFFICE: NOOKHAVEN HOMES
Estimated Monthly Payments
List Price: $312,500 20% Down Payment: $62,500 Loan Amount: $250,000 Loan Type: 30 Year Fixed Interest Rate: 6.5 % Monthly Payment: $1,580 Estimate does not include taxes, fees, insurance.
Request More Information
Property Location: 1301 SPEER BLVD 702 DENVER CO 80204 DENVER CO 80204
This Listing
Active Listings Nearby
Condo Mania Agent
Beth Sand
LIV Sotheby's International Realty
Broker Associate
Phone: 720.353.2384
You Might Also Be Interested In...
Community: DENVER TOWER CONDOMINIUMS ... Listing 2 of 8
First -- Next -- Previous -- Last
The Fair Housing Act prohibits discrimination in housing based on color, race, religion, national origin, sex, familial status, or disability.
Source: Information and Real Estate Services, LLC. Provided for limited non-commercial use only under IRES Rules. © Copyright IRES. All information subject to change and should be independently verified.
All real estate advertised herein is subject to the Federal Fair Housing Act and the Colorado Fair Housing Act, which Acts make it illegal to make or publish any advertisement that indicates any preference, limitation, or discrimination based on race, color, religion, sex, handicap, familial status, or national origin.
ALL RIGHTS RESERVED WORLDWIDE. No part of this publication may be reproduced, adapted, translated, stored in a retrieval system or transmitted in any form or by any means, electronic, mechanical, photocopying, recording, or otherwise, without the prior written permission of the publisher.
Information Deemed Reliable But Not Guaranteed. The information being provided is for consumer's personal, non-commercial use and may not be used for any purpose other than to identify prospective properties consumers may be interested in purchasing. This information, including square footage, while not guaranteed, has been acquired from sources believed to be reliable.
Last Updated: 2025-12-09 04:24:19
Denver Condo Mania





