Beth Erickson Sand Denver Real Estate Agent - 720.353.2384
SOLD! MLS: 5363286 $315,000
2 Bedrooms with 2 Baths6960 E GIRARD AVE 408 DENVER CO 80224
DENVER CO 80224MLS: 5363286
Status: SOLD
Closed On: 2025-03-21
Sold Price: $315,000
Sold Price per SqFt: $205
Square Footage: 15352 Bedrooms
2 Baths
Year Built: 1976
Zip Code: 80224
Listing Remarks
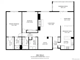
As you enter the secured building the elevator will be directly to your right. You will head up to the 4th floor where your new home awaits you. This unit is one of the largest units in the whole community and features over 1500 sqft of finished living space. There are 2 large bedrooms (the primary bedroom has a walk in closet), 2 bathrooms, IN UNIT LAUNDRY with shelves, an office, a large living room with a wood burning fireplace, a dining room and an enclosed lanai with windows. Morningside condos community center is literally just steps away from your building and it offers 2 swimming pools (indoor and outdoor), a community room with pool tables, dry sauna, steam shower and 2 separate work out areas. Not only do you have access to the community amenities but the HOA dues include your water and heating bills too. SELLER IS ALSO OFFERING TO PAY 6 MONTHS OF HOA DUES!!! Morningside manages all of the exterior maintenance including your roof and the entire grounds. Leave the shoveling to them. The location cannot be beat. You are less than a mile from I-25 and just a few blocks from a ton of shops and restaurants. If you are tired of scraping your car in the winter or your car getting hit with hail you don't have to worry about that anymore because this unit comes with an underground parking spot #408. Call your agent and book your showing today.
Address: 6960 E GIRARD AVE 408 DENVER CO 80224 DENVER CO 80224
Listing Courtesy of West and Main Homes Inc 303-935-8787
Condo Mania Agent
Beth Sand
LIV Sotheby's International Realty
Broker Associate
Phone: 720.353.2384
Request More Information
Listing Details
STATUS: Closed SPECIAL LISTING CONDITIONS: Private Owner LISTING CONTRACT DATE: 2024-11-23 CLOSE DATE: 2025-03-21 BEDROOMS: 2 BATHROOMS FULL: 1 BATHROOMS THREE QUARTER: 1 BATHROOMS HALF: 0 LIVING AREA SQ FT: 1535 BUILDING AREA TOTAL: 1535 YEAR BUILT: 1976 TAXES: $1,663 HOA FEES FREQUENCY: Monthly HOA FEES: $701 HOA INCLUDES: Trash, Snow Removal, Management, Maintenance Structure, Water/Sewer, Heat, Hazard Insurance APPLIANCES INCLUDED: Dishwasher, Refrigerator, Washer, Dryer, Disposal ARCHITECTURAL STYLE: Ranch CONSTRUCTION: Concrete COMMUNITY FEATURES: Clubhouse, Pool, Sauna, Fitness Center, Extra Storage, Elevator HEATING: Baseboard COOLING: Wall/Window Unit(s), Ceiling Fan(s) INTERIOR FEATURES: Pantry, Walk-In Closet(s) LAUNDRY FEATURES: Main Level # GARAGE SPACES: 1 PROPERTY TYPE: Attached Dwelling PROPERTY SUB TYPE: Attached Dwelling ROOF: Other POOL FEATURES: Private LISTING AGENT: KRISTA MCKISSACK LISTING OFFICE: WEST AND MAIN HOMES INC
Property Location: 6960 E GIRARD AVE 408 DENVER CO 80224 DENVER CO 80224
This Listing
Active Listings Nearby
You Might Also Be Interested In...
The Fair Housing Act prohibits discrimination in housing based on color, race, religion, national origin, sex, familial status, or disability.
Source: Information and Real Estate Services, LLC. Provided for limited non-commercial use only under IRES Rules. © Copyright IRES. All information subject to change and should be independently verified.
All real estate advertised herein is subject to the Federal Fair Housing Act and the Colorado Fair Housing Act, which Acts make it illegal to make or publish any advertisement that indicates any preference, limitation, or discrimination based on race, color, religion, sex, handicap, familial status, or national origin.
ALL RIGHTS RESERVED WORLDWIDE. No part of this publication may be reproduced, adapted, translated, stored in a retrieval system or transmitted in any form or by any means, electronic, mechanical, photocopying, recording, or otherwise, without the prior written permission of the publisher.
Information Deemed Reliable But Not Guaranteed. The information being provided is for consumer's personal, non-commercial use and may not be used for any purpose other than to identify prospective properties consumers may be interested in purchasing. This information, including square footage, while not guaranteed, has been acquired from sources believed to be reliable.
Last Updated: 2026-01-22 10:28:11
Denver Condo Mania





