Beth Erickson Sand Denver Real Estate Agent - 720.353.2384
SOLD! MLS: 5184323 $442,000
2 Bedrooms with 2 Baths837 E 17TH AVE 2G DENVER CO 80218
DENVER CO 80218MLS: 5184323
Status: SOLD
Closed On: 2024-07-10
Sold Price: $442,000
Sold Price per SqFt: $344
Square Footage: 12852 Bedrooms
2 Baths
Year Built: 1998
Zip Code: 80218
Listing Remarks
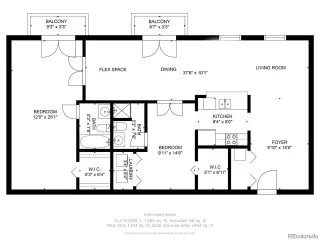
Seller will offer $10k in concessions towards Buyers' interest rate buydown and/or closing costs for the Buyers to embrace the vibrant 'uptown' lifestyle (1285 square feet) in this spacious 2-bedroom, 2-bathroom condo ideally located close to downtown, City Park, Museums, Cultural centers, and the renowned 'restaurant row' on 17th Avenue. Expansive, quirky and unusual, floor plan with 50 feet of south-facing exposure, flooded with natural light through the two French doors leading to your two balconies, and through two large windows. This one HAS the square footage at a 20%+ per sq/ft discount to the rest of the uptown neighborhood! The unit boasts a massive primary bedroom with full bath en-suite and a walk in closet, an open kitchen with granite countertops and stainless steel appliances, and a second bedroom or office featuring an opaque glass barn door, 3/4 bath, and walk-in closet. Hardwood floors throughout and a full-size washer and dryer enhance your uptown living. Bring your creativity to your tour where you'll view the large living room, dining room and foyer open areas; how best to use this grand space? Residents can enjoy the on-site workout facility and backyard courtyard, along with the heated underground garage space included in the HOA. Monthly HOA fees cover heating expenses, while electric costs are the owner's responsibility. Experience urban living at its finest in this stylish uptown condo. Only 30 residential condos in the building. The square feet represent a great value at this price!!! Look to see for yourself.
Address: 837 E 17TH AVE 2G DENVER CO 80218 DENVER CO 80218
Listing Courtesy of Kentwood Real Estate DTC, LLC 303-773-3399
Condo Mania Agent
Beth Sand
LIV Sotheby's International Realty
Broker Associate
Phone: 720.353.2384
Request More Information
Listing Details
STATUS: Closed SPECIAL LISTING CONDITIONS: Private Owner LISTING CONTRACT DATE: 2024-03-30 CLOSE DATE: 2024-07-10 BEDROOMS: 2 BATHROOMS FULL: 1 BATHROOMS THREE QUARTER: 1 BATHROOMS HALF: 0 LIVING AREA SQ FT: 1285 BUILDING AREA TOTAL: 1285 YEAR BUILT: 1998 TAXES: $2,358 HOA FEES FREQUENCY: Monthly HOA FEES: $540 HOA INCLUDES: Trash, Snow Removal, Maintenance Structure, Water/Sewer, Heat, Hazard Insurance APPLIANCES INCLUDED: Dishwasher, Refrigerator, Washer, Dryer, Microwave, Disposal ARCHITECTURAL STYLE: Contemporary/Modern, Ranch CONSTRUCTION: Brick/Brick Veneer, Stucco COMMUNITY FEATURES: Fitness Center, Elevator EXTERIOR FEATURES: Gas Grill, Balcony HEATING: Forced Air COOLING: Central Air, Ceiling Fan(s) INTERIOR FEATURES: Open Floorplan, Walk-In Closet(s) LAUNDRY FEATURES: Main Level LOT FEATURES: Corner Lot # GARAGE SPACES: 1 PARKING FEATURES: Heated Garage PROPERTY TYPE: Attached Dwelling PROPERTY SUB TYPE: Attached Dwelling ROOF: Other DIRECTION FACES: South LISTING AGENT: JIM TRAYNOR LISTING OFFICE: KENTWOOD REAL ESTATE DTC, LLC
Property Location: 837 E 17TH AVE 2G DENVER CO 80218 DENVER CO 80218
This Listing
Active Listings Nearby
You Might Also Be Interested In...
The Fair Housing Act prohibits discrimination in housing based on color, race, religion, national origin, sex, familial status, or disability.
Source: Information and Real Estate Services, LLC. Provided for limited non-commercial use only under IRES Rules. © Copyright IRES. All information subject to change and should be independently verified.
All real estate advertised herein is subject to the Federal Fair Housing Act and the Colorado Fair Housing Act, which Acts make it illegal to make or publish any advertisement that indicates any preference, limitation, or discrimination based on race, color, religion, sex, handicap, familial status, or national origin.
ALL RIGHTS RESERVED WORLDWIDE. No part of this publication may be reproduced, adapted, translated, stored in a retrieval system or transmitted in any form or by any means, electronic, mechanical, photocopying, recording, or otherwise, without the prior written permission of the publisher.
Information Deemed Reliable But Not Guaranteed. The information being provided is for consumer's personal, non-commercial use and may not be used for any purpose other than to identify prospective properties consumers may be interested in purchasing. This information, including square footage, while not guaranteed, has been acquired from sources believed to be reliable.
Last Updated: 2026-01-04 16:26:34
Denver Condo Mania





