Beth Erickson Sand Denver Real Estate Agent - 720.353.2384
MLS: 3971098 $365,000
1 Bedroom with 1 Bath336 E 1ST AVE 207 DENVER CO 80203
DENVER CO 80203MLS: 3971098
Status: ACTIVE
List Price: $365,000
Price per SQFT: $429
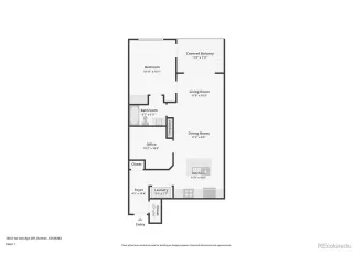
Square Footage: 8511 Bedroom
1 Bath
Year Built: 2013
Zip Code: 80203
Listing Remarks
Step inside the beautifully remodeled and contemporary condo with a den, in the Logan Lofts building. Offering 851 square feet of modern living space in Denver's vibrant Speer neighborhood. This unique and freshly refinished unit offers open-concept layout with high ceilings, providing an airy and inviting atmosphere. Large sliding glass doors boast abundant natural light throughout the unit. The kitchen is equipped with brand new stainless steel appliances, custom lighting and timeless wood cabinetry, seamlessly flowing into the living area-ideal for both relaxation and entertaining. Make yourself comfortable and cozy on a cold Colorado day with gas fireplace located in the living room. The additional bonus room is perfect for an office, workout room or you could add a murphy bed and make this the perfect place for guests! Access the newly finished bathroom with beautiful finishes throughout from both the bedroom or living room. Enjoy a cup of coffee or reading a book from the private balcony. A reserved parking spot #20 in the building's lot and bike storage provides additional convenience. The building offers secure entry, elevator access, and well-maintained common areas, making city living stress-free. Enjoy the unobstructed views of the mountains and downtown from the community rooftop deck. In addition, enjoy using the gas grill and fire pit on the rooftop deck, perfect for hosting friends or having a night in. The building's prime location offers easy access to transportation, parks, restaurants, and downtown Denver, ensuring a convenient and dynamic urban lifestyle.
Address: 336 E 1ST AVE 207 DENVER CO 80203 DENVER CO 80203
Listing Courtesy of RE/MAX Professionals 303-799-9898
Condo Mania Agent
Beth Sand
LIV Sotheby's International Realty
Broker Associate
Phone: 720.353.2384
Request More Information
Listing Details
STATUS: Active SPECIAL LISTING CONDITIONS: Private Owner LISTING CONTRACT DATE: 2025-09-04 BEDROOMS: 1 BATHROOMS FULL: 1 BATHROOMS THREE QUARTER: 0 BATHROOMS HALF: 0 LIVING AREA SQ FT: 851 BUILDING AREA TOTAL: 851 YEAR BUILT: 2013 TAXES: $1,977 HOA FEES FREQUENCY: Monthly HOA FEES: $551 HOA INCLUDES: Trash, Snow Removal, Maintenance Structure, Water/Sewer APPLIANCES INCLUDED: Dishwasher, Refrigerator, Microwave, Disposal ARCHITECTURAL STYLE: Contemporary/Modern, Ranch CONSTRUCTION: Wood/Frame COMMUNITY FEATURES: Elevator EXTERIOR FEATURES: Balcony FIREPLACE: Single Fireplace HEATING: Radiant, Ductless COOLING: Wall/Window Unit(s) INTERIOR FEATURES: Study Area # GARAGE SPACES: 1 PROPERTY TYPE: Attached Dwelling PROPERTY SUB TYPE: Attached Dwelling ROOF: Composition LISTING AGENT: LOGAN OPHEIM LISTING OFFICE: RE/MAX PROFESSIONALS
Estimated Monthly Payments
List Price: $365,000 20% Down Payment: $73,000 Loan Amount: $292,000 Loan Type: 30 Year Fixed Interest Rate: 6.5 % Monthly Payment: $1,846 Estimate does not include taxes, fees, insurance.
Request More Information
Property Location: 336 E 1ST AVE 207 DENVER CO 80203 DENVER CO 80203
This Listing
Active Listings Nearby
Condo Mania Agent
Beth Sand
LIV Sotheby's International Realty
Broker Associate
Phone: 720.353.2384
The Fair Housing Act prohibits discrimination in housing based on color, race, religion, national origin, sex, familial status, or disability.
Source: Information and Real Estate Services, LLC. Provided for limited non-commercial use only under IRES Rules. © Copyright IRES. All information subject to change and should be independently verified.
All real estate advertised herein is subject to the Federal Fair Housing Act and the Colorado Fair Housing Act, which Acts make it illegal to make or publish any advertisement that indicates any preference, limitation, or discrimination based on race, color, religion, sex, handicap, familial status, or national origin.
ALL RIGHTS RESERVED WORLDWIDE. No part of this publication may be reproduced, adapted, translated, stored in a retrieval system or transmitted in any form or by any means, electronic, mechanical, photocopying, recording, or otherwise, without the prior written permission of the publisher.
Information Deemed Reliable But Not Guaranteed. The information being provided is for consumer's personal, non-commercial use and may not be used for any purpose other than to identify prospective properties consumers may be interested in purchasing. This information, including square footage, while not guaranteed, has been acquired from sources believed to be reliable.
Last Updated: 2025-12-06 13:24:52
Denver Condo Mania





