Beth Erickson Sand Denver Real Estate Agent - 720.353.2384
MLS: 1800275 $565,000
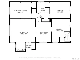
3 Bedrooms with 1 Bath5638 E 16TH AVE DENVER CO 80220
DENVER CO 80220MLS: 1800275
Status: ACTIVE
List Price: $565,000
Price per SQFT: $371
Square Footage: 15223 Bedrooms
1 Bath
Year Built: 1930
Zip Code: 80220
Listing Remarks
Well-maintained Park Hill duplex with 3 beds, 1 bath, and 1,522 finished sq ft. Main level features 2 bedrooms, updated full bathroom, hardwood floors throughout, a dedicated dining room, and a kitchen with a small breakfast nook. Basement includes a large non-conforming bedroom that could be split into two rooms or used as a family room, plus a large laundry room with utility sink and separate storage room. Basement is drywalled and ready to be finished. Located on an oversized corner lot (4,356 sq ft) with mature landscaping, a fenced backyard, and a detached 1-car garage with alley access. Forced air heat, central A/C, smart cameras, and video doorbell. Includes range, oven, dishwasher, washer, and dryer. Quiet, established neighborhood near public transit. Schools: Park Hill, DSST: Stapleton, East.
Address: 5638 E 16TH AVE DENVER CO 80220 DENVER CO 80220
Listing Courtesy of Brown Dog Real Estate 203-848-7561
Condo Mania Agent
Beth Sand
LIV Sotheby's International Realty
Broker Associate
Phone: 720.353.2384
Request More Information
Listing Details
STATUS: Active SPECIAL LISTING CONDITIONS: Private Owner LISTING CONTRACT DATE: 2025-08-09 BEDROOMS: 3 BATHROOMS FULL: 1 BATHROOMS THREE QUARTER: 0 BATHROOMS HALF: 0 LIVING AREA SQ FT: 1522 BUILDING AREA TOTAL: 809 YEAR BUILT: 1930 TAXES: $2,770 APPLIANCES INCLUDED: Dishwasher, Washer, Dryer, Disposal CONSTRUCTION: Wood/Frame, Concrete EXTERIOR FEATURES: Private Yard FIREPLACE: Gas, Single Fireplace HEATING: Forced Air COOLING: Central Air INTERIOR FEATURES: Eat-in Kitchen LAUNDRY FEATURES: In Basement LOT FEATURES: Gutters, Corner Lot, Level # GARAGE SPACES: 2 PROPERTY TYPE: Attached Dwelling PROPERTY SUB TYPE: Attached Dwelling ROOF: Composition DIRECTION FACES: East LISTING AGENT: MARK TOMMELL LISTING OFFICE: BROWN DOG REAL ESTATE
Estimated Monthly Payments
List Price: $565,000 20% Down Payment: $113,000 Loan Amount: $452,000 Loan Type: 30 Year Fixed Interest Rate: 6.5 % Monthly Payment: $2,857 Estimate does not include taxes, fees, insurance.
Request More Information
Property Location: 5638 E 16TH AVE DENVER CO 80220 DENVER CO 80220
This Listing
Active Listings Nearby
Condo Mania Agent
Beth Sand
LIV Sotheby's International Realty
Broker Associate
Phone: 720.353.2384
The Fair Housing Act prohibits discrimination in housing based on color, race, religion, national origin, sex, familial status, or disability.
Source: Information and Real Estate Services, LLC. Provided for limited non-commercial use only under IRES Rules. © Copyright IRES. All information subject to change and should be independently verified.
All real estate advertised herein is subject to the Federal Fair Housing Act and the Colorado Fair Housing Act, which Acts make it illegal to make or publish any advertisement that indicates any preference, limitation, or discrimination based on race, color, religion, sex, handicap, familial status, or national origin.
ALL RIGHTS RESERVED WORLDWIDE. No part of this publication may be reproduced, adapted, translated, stored in a retrieval system or transmitted in any form or by any means, electronic, mechanical, photocopying, recording, or otherwise, without the prior written permission of the publisher.
Information Deemed Reliable But Not Guaranteed. The information being provided is for consumer's personal, non-commercial use and may not be used for any purpose other than to identify prospective properties consumers may be interested in purchasing. This information, including square footage, while not guaranteed, has been acquired from sources believed to be reliable.
Last Updated: 2026-01-02 16:26:11
Denver Condo Mania





