Beth Erickson Sand Denver Real Estate Agent - 720.353.2384
MLS: 8642631 $489,000
3 Bedrooms with 4 Baths3616 S LISBON CT AURORA CO 80013
AURORA CO 80013MLS: 8642631
Status: ACTIVE
List Price: $489,000
Price per SQFT: $203
Square Footage: 24123 Bedrooms
4 Baths
Year Built: 2017
Zip Code: 80013
Listing Remarks
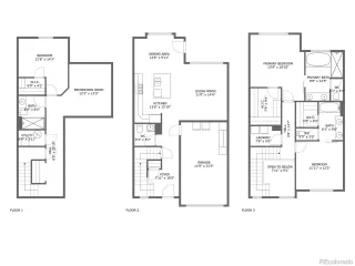
This well-appointed 3-bedroom, 3.5-bath townhome in the desirable Painted Ridge community is a must-see! Thoughtful design details throughout set this home apart from the rest. The main level is filled with natural light and offers peaceful views of a small park behind the property. Features include upgraded wood laminate flooring, a custom kitchen backsplash, stone countertops, and a stylish half-bath, along with floating shelves off the kitchen dining area. Upstairs, you'll find two spacious primary bedrooms. The main suite includes a custom walk-in closet and an oversized tub in the ensuite bath. This FINISHED basement provides a third bedroom, a full bathroom, and a high-ceiling media room-ideal for guests, a nanny, or additional living space. The attached single-car garage features a custom non-slip floor. Located in the highly rated Cherry Creek 5 School District, with Southlands Mall 5 miles away and multiple grocery and retail stores just over a mile away. The seller is including 5 flat screen TVs (2 x 65", 2 x 55",1 x 40"), approximately $4000+ value, and a $1500 garage storage system with mid-section work bench.
Address: 3616 S LISBON CT AURORA CO 80013 AURORA CO 80013
Listing Courtesy of eXp Realty, LLC 888-440-2724
Condo Mania Agent
Beth Sand
LIV Sotheby's International Realty
Broker Associate
Phone: 720.353.2384
Request More Information
Listing Details
STATUS: Active SPECIAL LISTING CONDITIONS: Private Owner LISTING CONTRACT DATE: 2025-07-17 BEDROOMS: 3 BATHROOMS FULL: 3 BATHROOMS THREE QUARTER: 0 BATHROOMS HALF: 1 LIVING AREA SQ FT: 2412 BUILDING AREA TOTAL: 1674 YEAR BUILT: 2017 TAXES: $3,238 HOA FEES FREQUENCY: Monthly HOA FEES: $426 HOA INCLUDES: Trash, Snow Removal, Maintenance Structure, Water/Sewer APPLIANCES INCLUDED: Dishwasher, Refrigerator, Washer, Dryer, Microwave, Disposal ARCHITECTURAL STYLE: Contemporary/Modern CONSTRUCTION: Wood/Frame, Wood Siding, Concrete HEATING: Forced Air COOLING: Central Air, Ceiling Fan(s) INTERIOR FEATURES: Eat-in Kitchen, Open Floorplan, Walk-In Closet(s), Kitchen Island LAUNDRY FEATURES: Upper Level LOT FEATURES: Gutters # GARAGE SPACES: 1 PROPERTY TYPE: Attached Dwelling PROPERTY SUB TYPE: Attached Dwelling ROOF: Composition LISTING AGENT: JIM KIRSCHT LISTING OFFICE: EXP REALTY, LLC
Estimated Monthly Payments
List Price: $489,000 20% Down Payment: $97,800 Loan Amount: $391,200 Loan Type: 30 Year Fixed Interest Rate: 6.5 % Monthly Payment: $2,473 Estimate does not include taxes, fees, insurance.
Request More Information
Property Location: 3616 S LISBON CT AURORA CO 80013 AURORA CO 80013
This Listing
Active Listings Nearby
Condo Mania Agent
Beth Sand
LIV Sotheby's International Realty
Broker Associate
Phone: 720.353.2384
The Fair Housing Act prohibits discrimination in housing based on color, race, religion, national origin, sex, familial status, or disability.
Source: Information and Real Estate Services, LLC. Provided for limited non-commercial use only under IRES Rules. © Copyright IRES. All information subject to change and should be independently verified.
All real estate advertised herein is subject to the Federal Fair Housing Act and the Colorado Fair Housing Act, which Acts make it illegal to make or publish any advertisement that indicates any preference, limitation, or discrimination based on race, color, religion, sex, handicap, familial status, or national origin.
ALL RIGHTS RESERVED WORLDWIDE. No part of this publication may be reproduced, adapted, translated, stored in a retrieval system or transmitted in any form or by any means, electronic, mechanical, photocopying, recording, or otherwise, without the prior written permission of the publisher.
Information Deemed Reliable But Not Guaranteed. The information being provided is for consumer's personal, non-commercial use and may not be used for any purpose other than to identify prospective properties consumers may be interested in purchasing. This information, including square footage, while not guaranteed, has been acquired from sources believed to be reliable.
Last Updated: 2025-11-18 16:27:12
Denver Condo Mania





