Beth Erickson Sand Denver Real Estate Agent - 720.353.2384
SOLD! MLS: 8138666 $400,000
2 Bedrooms with 3 Baths20618 E 63RD AVE AURORA CO 80019
AURORA CO 80019MLS: 8138666
Status: SOLD
Closed On: 2025-10-21
Sold Price: $400,000
Sold Price per SqFt: $282
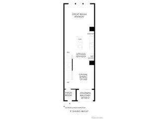
Square Footage: 14192 Bedrooms
3 Baths
Year Built: 2025
Zip Code: 80019
Listing Remarks
Your dream home is waiting. The enormous kitchen boasts name-brand appliances, upgraded countertops, and ample cabinet space. The interior features hardwood flooring throughout the home including the front entry, common areas, and main living areas. A generous garage provides additional storage and convenient parking for multiple vehicles. Just minutes from everyday conveniences, this community is perfectly situated for your family's daily routine. Discover what luxury living truly means and schedule a tour of this beautiful home.
Address: 20618 E 63RD AVE AURORA CO 80019 AURORA CO 80019
Listing Courtesy of Coldwell Banker Realty 56 303-235-0400
Condo Mania Agent
Beth Sand
LIV Sotheby's International Realty
Broker Associate
Phone: 720.353.2384
Request More Information
Listing Details
STATUS: Closed SPECIAL LISTING CONDITIONS: Builder LISTING CONTRACT DATE: 2025-04-08 CLOSE DATE: 2025-10-21 BEDROOMS: 2 BATHROOMS FULL: 1 BATHROOMS THREE QUARTER: 1 BATHROOMS HALF: 1 LIVING AREA SQ FT: 1419 BUILDING AREA TOTAL: 1419 YEAR BUILT: 2025 TAXES: $5,038 HOA FEES FREQUENCY: Monthly HOA FEES: $145 HOA INCLUDES: Trash, Snow Removal, Maintenance Structure APPLIANCES INCLUDED: Dishwasher, Microwave, Disposal ARCHITECTURAL STYLE: Chalet CONSTRUCTION: Wood/Frame, Stone, Composition Siding, Wood Siding, Concrete COMMUNITY FEATURES: Playground, Park HEATING: Forced Air, Humidity Control COOLING: Central Air INTERIOR FEATURES: Open Floorplan, Pantry, Walk-In Closet(s), Kitchen Island LAUNDRY FEATURES: Upper Level LOT FEATURES: Gutters, Abuts Public Open Space # GARAGE SPACES: 2 PARKING FEATURES: Tandem PROPERTY TYPE: Attached Dwelling PROPERTY SUB TYPE: Attached Dwelling ROOF: Composition DIRECTION FACES: North LISTING AGENT: AMY BALLAIN LISTING OFFICE: COLDWELL BANKER REALTY 56
Property Location: 20618 E 63RD AVE AURORA CO 80019 AURORA CO 80019
This Listing
Active Listings Nearby
You Might Also Be Interested In...
The Fair Housing Act prohibits discrimination in housing based on color, race, religion, national origin, sex, familial status, or disability.
Source: Information and Real Estate Services, LLC. Provided for limited non-commercial use only under IRES Rules. © Copyright IRES. All information subject to change and should be independently verified.
All real estate advertised herein is subject to the Federal Fair Housing Act and the Colorado Fair Housing Act, which Acts make it illegal to make or publish any advertisement that indicates any preference, limitation, or discrimination based on race, color, religion, sex, handicap, familial status, or national origin.
ALL RIGHTS RESERVED WORLDWIDE. No part of this publication may be reproduced, adapted, translated, stored in a retrieval system or transmitted in any form or by any means, electronic, mechanical, photocopying, recording, or otherwise, without the prior written permission of the publisher.
Information Deemed Reliable But Not Guaranteed. The information being provided is for consumer's personal, non-commercial use and may not be used for any purpose other than to identify prospective properties consumers may be interested in purchasing. This information, including square footage, while not guaranteed, has been acquired from sources believed to be reliable.
Last Updated: 2026-01-24 04:27:07
Denver Condo Mania



