Beth Erickson Sand Denver Real Estate Agent - 720.353.2384
SOLD! MLS: 7908552 $484,950
3 Bedrooms with 3 Baths4598 S VERSAILLES ST B AURORA CO 80015
AURORA CO 80015MLS: 7908552
Status: SOLD
Closed On: 2025-04-17
Sold Price: $484,950
Sold Price per SqFt: $329
Square Footage: 14753 Bedrooms
3 Baths
Year Built: 2024
Zip Code: 80015
Listing Remarks
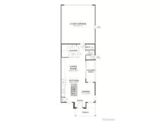
**!!AVAILABLE NOW/MOVE IN READY!!**SPECIAL FINANCING AVAILABLE**CORNER LOT**This charming Chicago is waiting to impress its residents with two stories of smartly designed living spaces and a maintenance free lifestyle. The open layout of the main floor is perfect for dining and entertaining. The kitchen features a large pantry, quartz center island, stainless steel appliances with an adjacent dining room. Beyond is an inviting living room and powder room. Upstairs, you'll find a convenient laundry and three generous bedrooms, including a lavish primary suite with a spacious walk-in closet and private bath.
Address: 4598 S VERSAILLES ST B AURORA CO 80015 AURORA CO 80015
Listing Courtesy of Richmond Realty Inc 303-850-5757
Condo Mania Agent
Beth Sand
LIV Sotheby's International Realty
Broker Associate
Phone: 720.353.2384
Request More Information
Listing Details
STATUS: Closed SPECIAL LISTING CONDITIONS: Builder LISTING CONTRACT DATE: 2025-03-11 CLOSE DATE: 2025-04-17 BEDROOMS: 3 BATHROOMS FULL: 1 BATHROOMS THREE QUARTER: 1 BATHROOMS HALF: 1 LIVING AREA SQ FT: 1475 BUILDING AREA TOTAL: 1475 YEAR BUILT: 2024 HOA FEES FREQUENCY: Other HOA FEES: $448 HOA INCLUDES: Trash, Snow Removal APPLIANCES INCLUDED: Dishwasher, Microwave, Disposal CONSTRUCTION: Wood/Frame COMMUNITY FEATURES: Clubhouse, Pool HEATING: Forced Air COOLING: Central Air INTERIOR FEATURES: Eat-in Kitchen, Pantry, Walk-In Closet(s), Kitchen Island LOT FEATURES: Corner Lot # GARAGE SPACES: 2 PROPERTY TYPE: Attached Dwelling PROPERTY SUB TYPE: Attached Dwelling ROOF: Composition, Fiberglass DIRECTION FACES: West LISTING AGENT: MATTHEW TONGE LISTING OFFICE: RICHMOND REALTY INC
Property Location: 4598 S VERSAILLES ST B AURORA CO 80015 AURORA CO 80015
This Listing
Active Listings Nearby
You Might Also Be Interested In...
The Fair Housing Act prohibits discrimination in housing based on color, race, religion, national origin, sex, familial status, or disability.
Source: Information and Real Estate Services, LLC. Provided for limited non-commercial use only under IRES Rules. © Copyright IRES. All information subject to change and should be independently verified.
All real estate advertised herein is subject to the Federal Fair Housing Act and the Colorado Fair Housing Act, which Acts make it illegal to make or publish any advertisement that indicates any preference, limitation, or discrimination based on race, color, religion, sex, handicap, familial status, or national origin.
ALL RIGHTS RESERVED WORLDWIDE. No part of this publication may be reproduced, adapted, translated, stored in a retrieval system or transmitted in any form or by any means, electronic, mechanical, photocopying, recording, or otherwise, without the prior written permission of the publisher.
Information Deemed Reliable But Not Guaranteed. The information being provided is for consumer's personal, non-commercial use and may not be used for any purpose other than to identify prospective properties consumers may be interested in purchasing. This information, including square footage, while not guaranteed, has been acquired from sources believed to be reliable.
Last Updated: 2026-01-22 04:26:31
Denver Condo Mania


