Beth Erickson Sand Denver Real Estate Agent - 720.353.2384
SOLD! MLS: 6934731 $547,075
3 Bedrooms with 3 Baths14591 W 91ST LN F ARVADA CO 80005
ARVADA CO 80005MLS: 6934731
Status: SOLD
Closed On: 2024-09-03
Sold Price: $547,075
Sold Price per SqFt: $367
Square Footage: 14893 Bedrooms
3 Baths
Year Built: 2024
Zip Code: 80005
Listing Remarks
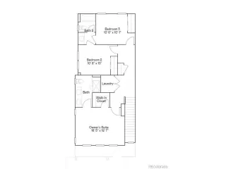
Welcome to Whisper Village! This beautiful end unit townhome has an open layout and faces open space! The main level boasts a chefs' style kitchen that features a a large eat in kitchen island, quartz countertops, upgraded cabinets, EVP flooring, large great room connected to the patio, 1/2 bathroom and dining nook. Upstairs you will find the owner's suite that features a convenient walk-in closet and an en-suite spa style bathroom. The 2nd and 3rd bedrooms share a Jack-and-Jill style bathroom in between them. The Laundry room is conveniently located near the bedrooms! Some additional features include an attached 2-car garage and solar! Residents enjoy a variety of local amenities, including a community recreation center, bike paths, trails and open space, plus discover fabulous shopping, dining and entertainment in Olde Town Arvada. Plus, downtown Denver is just a short drive away! Ready July 2024
Address: 14591 W 91ST LN F ARVADA CO 80005 ARVADA CO 80005
Listing Courtesy of Compass - Denver 303-536-1786
Condo Mania Agent
Beth Sand
LIV Sotheby's International Realty
Broker Associate
Phone: 720.353.2384
Request More Information
Listing Details
STATUS: Closed SPECIAL LISTING CONDITIONS: Builder LISTING CONTRACT DATE: 2024-06-04 CLOSE DATE: 2024-09-03 BEDROOMS: 3 BATHROOMS FULL: 1 BATHROOMS THREE QUARTER: 1 BATHROOMS HALF: 1 LIVING AREA SQ FT: 1489 BUILDING AREA TOTAL: 1489 YEAR BUILT: 2024 TAXES: $45 HOA FEES FREQUENCY: Monthly HOA FEES: $79 HOA INCLUDES: Trash APPLIANCES INCLUDED: Dishwasher, Refrigerator, Microwave, Disposal CONSTRUCTION: Wood/Frame, Stone, Other HEATING: Forced Air COOLING: Central Air INTERIOR FEATURES: Eat-in Kitchen, Open Floorplan, Walk-In Closet(s), Jack & Jill Bathroom LAUNDRY FEATURES: Upper Level LOT FEATURES: Corner Lot # GARAGE SPACES: 2 PROPERTY TYPE: Attached Dwelling PROPERTY SUB TYPE: Attached Dwelling ROOF: Composition LISTING AGENT: KRIS CERETTO LISTING OFFICE: COMPASS - DENVER
Property Location: 14591 W 91ST LN F ARVADA CO 80005 ARVADA CO 80005
This Listing
Active Listings Nearby
You Might Also Be Interested In...
The Fair Housing Act prohibits discrimination in housing based on color, race, religion, national origin, sex, familial status, or disability.
Source: Information and Real Estate Services, LLC. Provided for limited non-commercial use only under IRES Rules. © Copyright IRES. All information subject to change and should be independently verified.
All real estate advertised herein is subject to the Federal Fair Housing Act and the Colorado Fair Housing Act, which Acts make it illegal to make or publish any advertisement that indicates any preference, limitation, or discrimination based on race, color, religion, sex, handicap, familial status, or national origin.
ALL RIGHTS RESERVED WORLDWIDE. No part of this publication may be reproduced, adapted, translated, stored in a retrieval system or transmitted in any form or by any means, electronic, mechanical, photocopying, recording, or otherwise, without the prior written permission of the publisher.
Information Deemed Reliable But Not Guaranteed. The information being provided is for consumer's personal, non-commercial use and may not be used for any purpose other than to identify prospective properties consumers may be interested in purchasing. This information, including square footage, while not guaranteed, has been acquired from sources believed to be reliable.
Last Updated: 2026-01-01 04:24:13
Denver Condo Mania

