Beth Erickson Sand Denver Real Estate Agent - 720.353.2384
MLS: 6577908 $419,000
4 Bedrooms with 4 Baths754 S YOUNGFIELD CT LAKEWOOD CO 80228
LAKEWOOD CO 80228MLS: 6577908
Status: ACTIVE
List Price: $419,000
Price per SQFT: $179
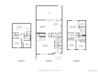
Square Footage: 23354 Bedrooms
4 Baths
Year Built: 1968
Zip Code: 80228
Listing Remarks
* SELLER OFFERING $5,000 IN CONCESSIONS! * Beautifully updated 4-bedroom, 4-bath townhome offering style, space, and comfort in an ideal location close to both the mountains and the city. The main level features a remodeled kitchen with a new center island and an inviting living room highlighted by a striking stone accent wall. Upstairs, the private primary suite boasts a remodeled bath and a redesigned walk-in closet with custom organization. The finished basement adds versatility with brand-new carpet, an egress window, and a fully remodeled bathroom. A dedicated work room offers endless possibilities for hobbies, projects, or storage, and the 7-foot ceilings provide a comfortable, open feel. Enjoy outdoor living on the private patio, plus the convenience of a spacious 2-car garage with a new door and opener. Community amenities include a pool, clubhouse, and fitness center, creating a true lifestyle home.
Address: 754 S YOUNGFIELD CT LAKEWOOD CO 80228 LAKEWOOD CO 80228
Listing Courtesy of Redfin Corporation 303-536-8941
Condo Mania Agent
Beth Sand
LIV Sotheby's International Realty
Broker Associate
Phone: 720.353.2384
Request More Information
Listing Details
STATUS: Active SPECIAL LISTING CONDITIONS: Private Owner LISTING CONTRACT DATE: 2025-09-25 BEDROOMS: 4 BATHROOMS FULL: 2 BATHROOMS THREE QUARTER: 1 BATHROOMS HALF: 1 LIVING AREA SQ FT: 2335 BUILDING AREA TOTAL: 1650 YEAR BUILT: 1968 TAXES: $2,049 HOA FEES FREQUENCY: Monthly HOA FEES: $665 HOA INCLUDES: Trash, Snow Removal, Maintenance Structure, Water/Sewer APPLIANCES INCLUDED: Dishwasher, Refrigerator, Washer, Dryer, Microwave, Freezer, Disposal CONSTRUCTION: Wood/Frame, Brick/Brick Veneer, Vinyl Siding, Concrete COMMUNITY FEATURES: Clubhouse, Pool, Playground, Fitness Center, Park FIREPLACE: None HEATING: Forced Air COOLING: Central Air, Ceiling Fan(s) INTERIOR FEATURES: Pantry, Walk-In Closet(s), Kitchen Island LOT FEATURES: Gutters # GARAGE SPACES: 2 PROPERTY TYPE: Attached Dwelling PROPERTY SUB TYPE: Attached Dwelling ROOF: Fiberglass VIEW: Mountain(s) LISTING AGENT: RACHAEL SANDERSON LISTING OFFICE: REDFIN CORPORATION
Estimated Monthly Payments
List Price: $419,000 20% Down Payment: $83,800 Loan Amount: $335,200 Loan Type: 30 Year Fixed Interest Rate: 6.5 % Monthly Payment: $2,119 Estimate does not include taxes, fees, insurance.
Request More Information
Property Location: 754 S YOUNGFIELD CT LAKEWOOD CO 80228 LAKEWOOD CO 80228
This Listing
Active Listings Nearby
Condo Mania Agent
Beth Sand
LIV Sotheby's International Realty
Broker Associate
Phone: 720.353.2384
The Fair Housing Act prohibits discrimination in housing based on color, race, religion, national origin, sex, familial status, or disability.
Source: Information and Real Estate Services, LLC. Provided for limited non-commercial use only under IRES Rules. © Copyright IRES. All information subject to change and should be independently verified.
All real estate advertised herein is subject to the Federal Fair Housing Act and the Colorado Fair Housing Act, which Acts make it illegal to make or publish any advertisement that indicates any preference, limitation, or discrimination based on race, color, religion, sex, handicap, familial status, or national origin.
ALL RIGHTS RESERVED WORLDWIDE. No part of this publication may be reproduced, adapted, translated, stored in a retrieval system or transmitted in any form or by any means, electronic, mechanical, photocopying, recording, or otherwise, without the prior written permission of the publisher.
Information Deemed Reliable But Not Guaranteed. The information being provided is for consumer's personal, non-commercial use and may not be used for any purpose other than to identify prospective properties consumers may be interested in purchasing. This information, including square footage, while not guaranteed, has been acquired from sources believed to be reliable.
Last Updated: 2025-11-18 16:27:12
Denver Condo Mania





