Beth Erickson Sand Denver Real Estate Agent - 720.353.2384
SOLD! MLS: 6267061 $315,000
3 Bedrooms with 2 Baths14465 E 1ST DR C8 AURORA CO 80011
AURORA CO 80011MLS: 6267061
Status: SOLD
Closed On: 2024-12-13
Sold Price: $315,000
Sold Price per SqFt: $252
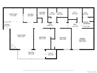
Square Footage: 12483 Bedrooms
2 Baths
Year Built: 1982
Zip Code: 80011
Listing Remarks
SELLER OFFERING A $5,000 CREDIT AT CLOSING FOR RATE BUY DOWN! Welcome to this rare opportunity to be the 2nd ever owner of this spacious 3 Bedroom, 2 Bathroom Condominium within walking distance of the Town Center at Aurora. This wonderfully updated condo in the Cherry Grove East community is located on the top floor with vaulted ceilings, lots of natural light and no one above you! Fresh paint on every wall, NEW flooring throughout, modern fixtures installed and new hardware make this place move-in ready! Cozy up in the living room next to the wood burning fireplace. Enjoy cooking in the nicely acquainted kitchen complete with quartz countertops, double oven and plenty of prep space. Sip your coffee in the morning or watch the sunset in the evening on your very own and large outdoor patio. Wind down and relax in your private primary suite complete with a walk-in closet and bathroom with a tub. Have guests over, work from home or personalize your kids rooms; this unit offers tons of flexibility and space for all your needs! The community features an outdoor pool, tennis/pickleball courts, walking trails and plenty of parking. This unit also comes with 3 reserved parking spaces! Did I mention the location is so convenient with RTD Lightrail, Town Center shops and restaurants, highway access, minutes away from hospitals and medical offices! Don't hesitate to call and schedule a showing on this great home today!
Address: 14465 E 1ST DR C8 AURORA CO 80011 AURORA CO 80011
Listing Courtesy of eXp Realty, LLC 888-440-2724
Condo Mania Agent
Beth Sand
LIV Sotheby's International Realty
Broker Associate
Phone: 720.353.2384
Request More Information
Listing Details
STATUS: Closed SPECIAL LISTING CONDITIONS: Private Owner LISTING CONTRACT DATE: 2024-09-20 CLOSE DATE: 2024-12-13 BEDROOMS: 3 BATHROOMS FULL: 2 BATHROOMS THREE QUARTER: 0 BATHROOMS HALF: 0 LIVING AREA SQ FT: 1248 BUILDING AREA TOTAL: 1248 YEAR BUILT: 1982 TAXES: $1,625 HOA FEES FREQUENCY: Monthly HOA FEES: $370 HOA INCLUDES: Trash, Snow Removal, Maintenance Structure, Water/Sewer, Hazard Insurance APPLIANCES INCLUDED: Double Oven, Refrigerator, Washer, Dryer, Microwave ARCHITECTURAL STYLE: Ranch CONSTRUCTION: Wood/Frame COMMUNITY FEATURES: Tennis Court(s), Pool EXTERIOR FEATURES: Balcony FIREPLACE: Single Fireplace HEATING: Forced Air COOLING: Central Air, Ceiling Fan(s) INTERIOR FEATURES: Cathedral/Vaulted Ceilings, Walk-In Closet(s) LAUNDRY FEATURES: Main Level # GARAGE SPACES: 3 PROPERTY TYPE: Attached Dwelling PROPERTY SUB TYPE: Attached Dwelling ROOF: Composition LISTING AGENT: MICHAEL NIRK LISTING OFFICE: EXP REALTY, LLC
Property Location: 14465 E 1ST DR C8 AURORA CO 80011 AURORA CO 80011
This Listing
Active Listings Nearby
You Might Also Be Interested In...
The Fair Housing Act prohibits discrimination in housing based on color, race, religion, national origin, sex, familial status, or disability.
Source: Information and Real Estate Services, LLC. Provided for limited non-commercial use only under IRES Rules. © Copyright IRES. All information subject to change and should be independently verified.
All real estate advertised herein is subject to the Federal Fair Housing Act and the Colorado Fair Housing Act, which Acts make it illegal to make or publish any advertisement that indicates any preference, limitation, or discrimination based on race, color, religion, sex, handicap, familial status, or national origin.
ALL RIGHTS RESERVED WORLDWIDE. No part of this publication may be reproduced, adapted, translated, stored in a retrieval system or transmitted in any form or by any means, electronic, mechanical, photocopying, recording, or otherwise, without the prior written permission of the publisher.
Information Deemed Reliable But Not Guaranteed. The information being provided is for consumer's personal, non-commercial use and may not be used for any purpose other than to identify prospective properties consumers may be interested in purchasing. This information, including square footage, while not guaranteed, has been acquired from sources believed to be reliable.
Last Updated: 2026-01-16 16:25:45
Denver Condo Mania





