Beth Erickson Sand Denver Real Estate Agent - 720.353.2384
MLS: 4762433 $339,500
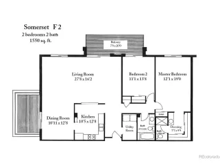
2 Bedrooms with 2 Baths14102 E LINVALE PL 219-501 AURORA CO 80014
AURORA CO 80014MLS: 4762433
Status: ACTIVE
List Price: $339,500
Price per SQFT: $218
Square Footage: 15602 Bedrooms
2 Baths
Year Built: 1977
Zip Code: 80014
Listing Remarks
Exceptional location with panoramic views - a true "10" overlooking the 3rd hole and fairway with mountain views to the west. This desirable F-2 end unit offers outstanding privacy with only one common wall and expanded living space through two fully enclosed lanais. Upgrades throughout include vinyl entry, Andersen replacement patio doors, replacement breaker box. The south-facing lanai features both screen/glass enclosure for fresh air and sunshine year-round, while the west lanai is fully glassed in for comfortable four-season enjoyment - perfect for morning coffee or entertaining guests. Inside, you'll find updated natural wood cabinetry in the kitchen, durable premium vinyl flooring in the entry and kitchen, and generous storage throughout. The unit includes all major appliances - refrigerator, range, microwave, dishwasher, washer, dryer, and an extra upright freezer, plus a metal Cowboy-brand storage locker in the underground garage. Underground parking space #22 provides secure, well-lit, 24-hour access and connects conveniently to the elevator through a glass-enclosed entry portico. Additional features include in-unit laundry, an extra storage closet (#501, approx. 3' x 4') down the hall, trash chute on each floor, and recycling in the garage. Enjoy both privacy and an active lifestyle in this secure, friendly six-story building with an interior mailroom and welcoming lobby.
Address: 14102 E LINVALE PL 219-501 AURORA CO 80014 AURORA CO 80014
Listing Courtesy of Heather Gardens Brokers 720-641-9800
Community: HEATHER GARDENS ... Listing 22 of 60
First -- Next -- Previous -- Last
Condo Mania Agent
Beth Sand
LIV Sotheby's International Realty
Broker Associate
Phone: 720.353.2384
Request More Information
Listing Details
STATUS: Active SPECIAL LISTING CONDITIONS: Private Owner LISTING CONTRACT DATE: 2025-10-05 BEDROOMS: 2 BATHROOMS FULL: 1 BATHROOMS THREE QUARTER: 1 BATHROOMS HALF: 0 LIVING AREA SQ FT: 1560 BUILDING AREA TOTAL: 1560 YEAR BUILT: 1977 TAXES: $1,603 HOA FEES FREQUENCY: Monthly HOA FEES: $814 HOA INCLUDES: Trash, Snow Removal, Maintenance Structure, Water/Sewer, Heat, Hazard Insurance APPLIANCES INCLUDED: Dishwasher, Refrigerator, Washer, Dryer, Microwave, Freezer, Disposal ARCHITECTURAL STYLE: Contemporary/Modern, Ranch CONSTRUCTION: Block COMMUNITY FEATURES: Pool, Sauna, Fitness Center, Elevator HEATING: Hot Water, Baseboard COOLING: Wall/Window Unit(s) LAUNDRY FEATURES: Main Level, Common Area LOT FEATURES: On Golf Course, Near Golf Course # GARAGE SPACES: 1 PROPERTY TYPE: Attached Dwelling PROPERTY SUB TYPE: Attached Dwelling ROOF: Rubber DIRECTION FACES: Southwest VIEW: Mountain(s) LISTING AGENT: BRUCE L HENSON LISTING OFFICE: HEATHER GARDENS BROKERS
Estimated Monthly Payments
List Price: $339,500 20% Down Payment: $67,900 Loan Amount: $271,600 Loan Type: 30 Year Fixed Interest Rate: 6.5 % Monthly Payment: $1,717 Estimate does not include taxes, fees, insurance.
Request More Information
Property Location: 14102 E LINVALE PL 219-501 AURORA CO 80014 AURORA CO 80014
This Listing
Active Listings Nearby
Condo Mania Agent
Beth Sand
LIV Sotheby's International Realty
Broker Associate
Phone: 720.353.2384
You Might Also Be Interested In...
Community: HEATHER GARDENS ... Listing 22 of 60
First -- Next -- Previous -- Last
The Fair Housing Act prohibits discrimination in housing based on color, race, religion, national origin, sex, familial status, or disability.
Source: Information and Real Estate Services, LLC. Provided for limited non-commercial use only under IRES Rules. © Copyright IRES. All information subject to change and should be independently verified.
All real estate advertised herein is subject to the Federal Fair Housing Act and the Colorado Fair Housing Act, which Acts make it illegal to make or publish any advertisement that indicates any preference, limitation, or discrimination based on race, color, religion, sex, handicap, familial status, or national origin.
ALL RIGHTS RESERVED WORLDWIDE. No part of this publication may be reproduced, adapted, translated, stored in a retrieval system or transmitted in any form or by any means, electronic, mechanical, photocopying, recording, or otherwise, without the prior written permission of the publisher.
Information Deemed Reliable But Not Guaranteed. The information being provided is for consumer's personal, non-commercial use and may not be used for any purpose other than to identify prospective properties consumers may be interested in purchasing. This information, including square footage, while not guaranteed, has been acquired from sources believed to be reliable.
Last Updated: 2025-12-01 13:26:12
Denver Condo Mania





