Beth Erickson Sand Denver Real Estate Agent - 720.353.2384
SOLD! MLS: 4293378 $368,500
4 Bedrooms with 3 Baths15005 E LOUISIANA DR C AURORA CO 80012
AURORA CO 80012MLS: 4293378
Status: SOLD
Closed On: 2024-07-24
Sold Price: $368,500
Sold Price per SqFt: $198
Square Footage: 18624 Bedrooms
3 Baths
Year Built: 1979
Zip Code: 80012
Listing Remarks
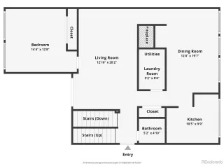
Completely updated townhome. Park is located across the street. Living area is located on Levels 2 and 3 with 2 car attached garage on ground level. Updated kitchen- new cabinets, Stone counter, Sink, appliances, hardware and fixtures Upper levels offer natural light. No other units above this unit. New flooring (LVP, Tile and Carpet) and New paint 4 bed/ 3 bath Porch/ balcony located on level 2 off living area with fireplace. Walk to shopping/ restaurants and public transportation.
Address: 15005 E LOUISIANA DR C AURORA CO 80012 AURORA CO 80012
Listing Courtesy of Buy-Out Company Realty, LLC 303-500-0157
Condo Mania Agent
Beth Sand
LIV Sotheby's International Realty
Broker Associate
Phone: 720.353.2384
Request More Information
Listing Details
STATUS: Closed SPECIAL LISTING CONDITIONS: Private Owner LISTING CONTRACT DATE: 2024-04-18 CLOSE DATE: 2024-07-24 BEDROOMS: 4 BATHROOMS FULL: 2 BATHROOMS THREE QUARTER: 0 BATHROOMS HALF: 1 LIVING AREA SQ FT: 1862 BUILDING AREA TOTAL: 1862 YEAR BUILT: 1979 TAXES: $1,953 HOA FEES FREQUENCY: Monthly HOA FEES: $435 HOA INCLUDES: Trash, Snow Removal, Maintenance Structure, Water/Sewer APPLIANCES INCLUDED: Self Cleaning Oven, Dishwasher, Refrigerator, Microwave, Disposal CONSTRUCTION: Wood/Frame, Wood Siding EXTERIOR FEATURES: Balcony FIREPLACE: Living Room, Single Fireplace HEATING: Forced Air COOLING: Central Air, Ceiling Fan(s) INTERIOR FEATURES: Eat-in Kitchen, Pantry, Walk-In Closet(s) LAUNDRY FEATURES: Upper Level LOT FEATURES: Abuts Public Open Space # GARAGE SPACES: 2 PROPERTY TYPE: Attached Dwelling PROPERTY SUB TYPE: Attached Dwelling ROOF: Composition LISTING AGENT: STACY BEER LISTING OFFICE: BUY-OUT COMPANY REALTY, LLC
Property Location: 15005 E LOUISIANA DR C AURORA CO 80012 AURORA CO 80012
This Listing
Active Listings Nearby
You Might Also Be Interested In...
The Fair Housing Act prohibits discrimination in housing based on color, race, religion, national origin, sex, familial status, or disability.
Source: Information and Real Estate Services, LLC. Provided for limited non-commercial use only under IRES Rules. © Copyright IRES. All information subject to change and should be independently verified.
All real estate advertised herein is subject to the Federal Fair Housing Act and the Colorado Fair Housing Act, which Acts make it illegal to make or publish any advertisement that indicates any preference, limitation, or discrimination based on race, color, religion, sex, handicap, familial status, or national origin.
ALL RIGHTS RESERVED WORLDWIDE. No part of this publication may be reproduced, adapted, translated, stored in a retrieval system or transmitted in any form or by any means, electronic, mechanical, photocopying, recording, or otherwise, without the prior written permission of the publisher.
Information Deemed Reliable But Not Guaranteed. The information being provided is for consumer's personal, non-commercial use and may not be used for any purpose other than to identify prospective properties consumers may be interested in purchasing. This information, including square footage, while not guaranteed, has been acquired from sources believed to be reliable.
Last Updated: 2026-01-22 04:26:31
Denver Condo Mania





